Refugi de Cova Cambra
14 mayo 2015 per uecbarrancs
![]() |
| Estat actual. |
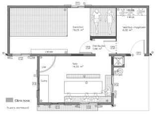
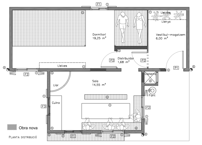
La caseta de llenyataires de Cova Cambra situada a la Mola de Catí, durant molts d’anys s’ha utilitzat com a refugi d’excursionistes i espeleòlegs, actualment esta amb un estat deplorable. Després de moltes reunions i de presentar-los un projecte d’arranjament al propietari, l’Ajuntament del Tortosa. Finalment avui, la UEC de Tortosa ha firmat concessió d’us del refugi durant el propers 20 anys. Si tot va correctament la propera tardo, es durà a terme les obres d’arranjament del refugi.
| Alfredo Ferré i Carlos Balague firmant la concessió |
![]() |
| Nova distribució |



